适用燃料:本产品采用固定炉排设计,适用燃料为成型木颗粒,可加少量木条、木块,也可与煤混烧。
结构和性能特点:
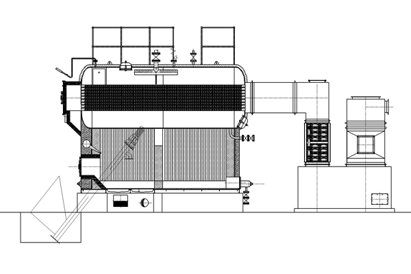
1)采用水火管结构,拱形管板、螺纹烟管、翼形烟道,烟气流程长传热快,结构弹性好,无管板开裂问题。
2)炉膛采用膜式水冷壁,提高换热面积,保证锅炉高效换热。
3)前后拱布置二次风,保证颗粒分解后的飞灰二次燃烧,燃烧热效率高。飞灰燃烬度高,彻底消除炉内黑烟。
4)配有防爆门,有效泻压,保护炉墙。
5)采用生物质专用固定炉排,不易漏灰,耐高温,维护成本低。
6)螺旋给料机机械化进料。进料均匀,燃烧稳定方便控制,具备不易回火,清灰方便的特性。
7)尾部设置省煤器、空预器降低排烟温度,提高锅炉效率。
8)锅炉配有高低水位报警及极限低水位停炉、超压报警,并有水泵自动控制,永无缺水事故之忧。
DZG系列卧式固定炉排燃颗粒生物质蒸汽锅炉技术参数表

DZG系列卧式固定炉排燃颗粒生物质蒸汽锅炉总图
