用途:
1、工业用户:制药,造纸,烟草,印染,制衣等行业。
2、民用:餐饮,洗衣房,(医院)消毒,桑拿等。
3、通过汽水换热器加热采暖系统(空调,暖气片,地板采暖等)的热水。
4、为溴化锂吸收式制冷机提供动力(压力P=0.6-0.8Mpa)
特点:
1、采用国际上最成熟的三回程全湿背结构,安全可靠。
2、独特的大燃烧室设计,增大了炉膛辐射受热面积,缩小了锅炉的体积,降低了NOx的排放。
3、采用波纹炉胆,锅炉使用更安全。
4、采用螺纹烟管,增加了传热效果,提高锅炉热效率。
5、锅炉前后烟管箱采用多级密封方式,保证不会漏烟。
6、锅炉控制系统适合在高温,高湿度环境下长期运行。
7、具有较大的蒸汽空间,蒸汽品质好。
8、多重连锁保护,水位,蒸汽压力,燃烧压力等保护。
9、采用高效保温材料,锅炉表面温度低,散热损失可以忽略不计。
10、严格按中国国家规范和标准生产,所有受压部件均采用优质锅炉钢材。
11、每台锅炉出厂前都经过严格的检验和测试,包括水压试验和x射线检测。
12、选用与蓝天锅炉最匹配的燃烧器,保证锅炉使用时安全可靠,并且达到额定出力。
13、所有配件如燃烧器,水泵,水位控制器,阀门仪表等配套国际或国内知名品牌的产品。
14、设置有人孔,手孔等,维护保养十分方便。
15、可以根据用户不同要求进行特殊设计。
WNS系列燃油燃气蒸汽锅炉技术参数表
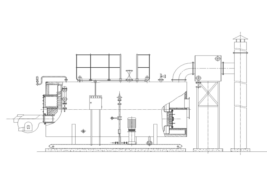
WNS系列燃油燃气蒸汽锅炉总图
