适用燃料:本产品采用空间悬浮,适用于燃料:木屑、木粉、少量木条、木块、木片。并特别适用于用户尖峰负荷突出。也适用于燃用湿木屑燃料和混有易结焦杂质成分的燃料。
结构和性能特点:
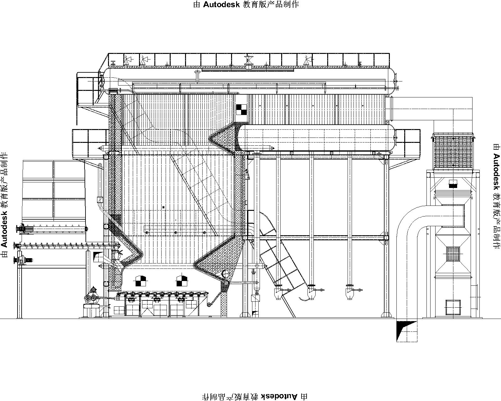
1) 受压元件为水火管结构,设下置绝热炉膛。
2) 下置绝热炉膛内底部布置固定鳞片式炉排或者可翻转炉排,不漏料、布风均匀。
3) 侧墙开炉门,可加料和炉排面上清理灰渣,前墙下部有木屑加料口。
4) 后墙上部布置有二次风,促使形成S型火焰,增加火焰长度,满足木屑木粉燃烬的要求。
5) 锅炉后墙装有2个防爆门,防止爆燃时损坏炉墙。
6)尾部设置省煤器、空预器降低排烟温度,提高锅炉效率。
7)锅炉配有高低水位报警及极限低水位停炉、超压报警,并有水泵自动控制,不会发生无水的现象。
DZS系列卧式燃木片、木屑生物质蒸汽锅炉技术参数表

DZS系列卧式燃木片生物质蒸汽锅炉总图
