适用燃料:本产品煤种适应广,可燃用Ⅰ、Ⅱ、Ⅲ类烟煤及贫煤。
结构和性能特点:
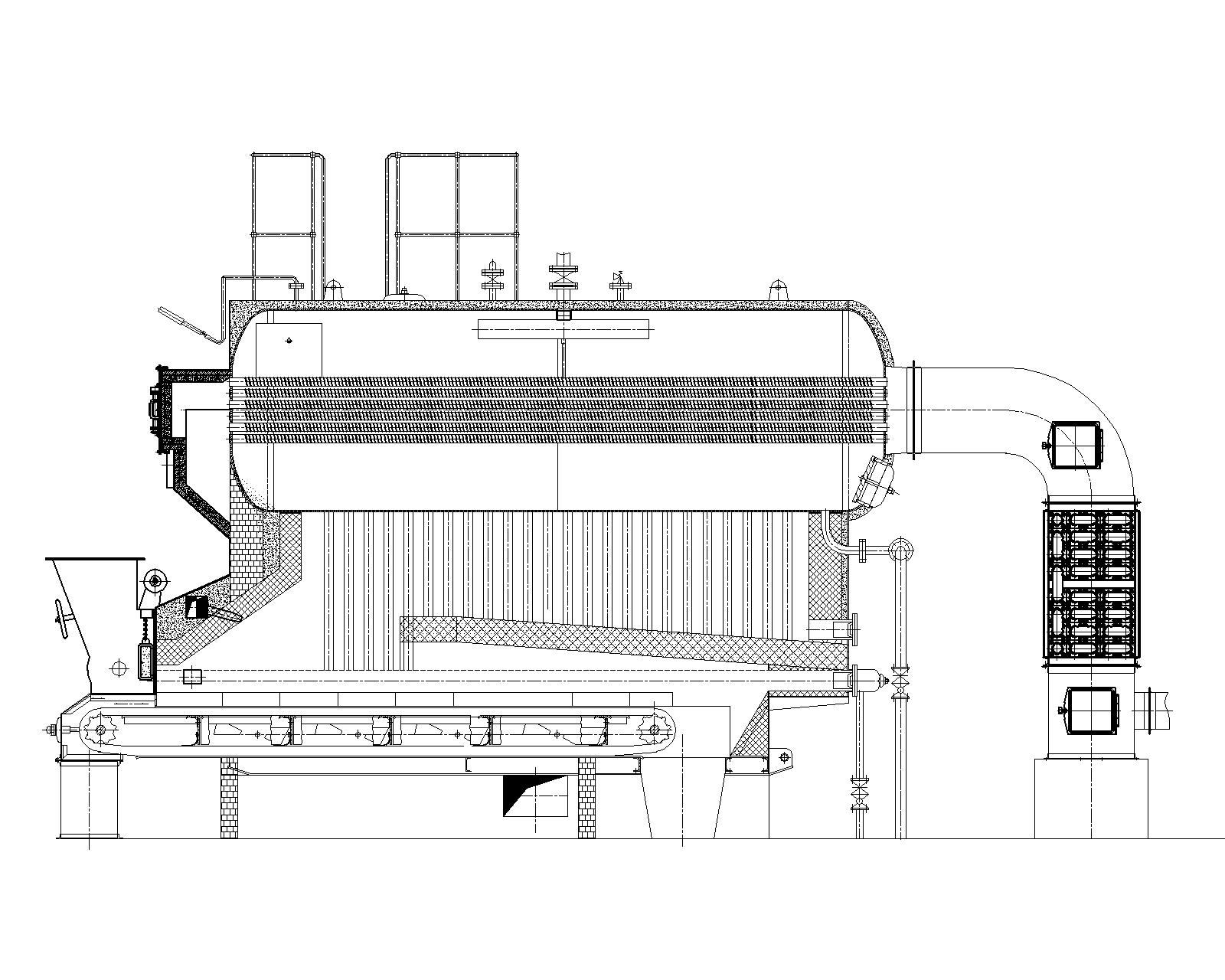
1锅炉本体采用水火管结构,拱形管板、螺纹烟管、翼形烟道,烟气流程长传热快,结构弹性好,无管板开裂问题。
2布置二次风,保证燃料分解后的飞灰二次燃烧,燃烧效率高。飞灰燃烬度高,彻底消除炉内黑烟。
3加长炉拱炉膛布置合理,燃烧效果好。
4采用轻型链条炉排,分段独立送风。加厚炉排片强度更高,不易拉断,炉排片寿命长,检修周期长。燃烧稳定,操作方便,调节灵活。
5上煤机机械化进料机,螺旋除渣机自动出渣。劳动强度低,省工省力。
6尾部设置省煤器降低排烟温度,提高锅炉效率。
7锅炉配有高低水位报警及极限低水位停炉、超压报警,并有水泵自动控制,不会发生无水的现象。
DZL系列卧式链条炉排燃煤蒸汽锅炉技术参数表

