适用燃料:本产品专为菌渣燃烧设计采用快速炉膛燃烧方式,适用燃料为菌渣,也可加木条、木块、竹丝等混烧。
结构和性能特点:
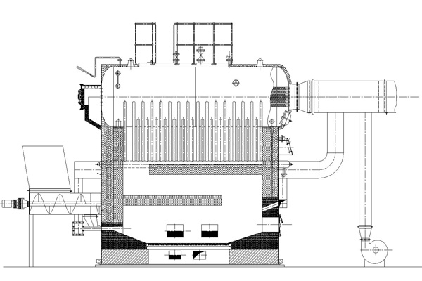
1)采用水火管结构,拱形管板、螺纹烟管、翼形烟道,烟气流程长传热快,结构弹性好,无管板开裂问题独特设计防搭桥料仓,无须扰动自重落料。
2)预热的交变一次风吹送,室燃与层燃相结合。
3)炉内前端预热烘干,省去燃料炉外烘干过程和设备。
4)绝热燃烧炉膛与传热炉膛分开,大空间燃烧,多回程长距离燃尽,多点配二次风,消黑烟降粉尘,节能环保。
5)特殊螺旋给料机连续均匀给料,燃料自行隔断料仓与炉膛,有效防止烟气通过给料系统外窜和料仓着火。
6)不漏料渣的专用固定炉排,布风均匀,适合均匀细碎生物质燃烧要求。
7)配专门设计的高灵敏防爆门,有效泄压,保护炉墙免受损害。
8)无食用菌渣时可燃用其他类生物质燃料
9)尾部设置空预器降低排烟温度,提高锅炉效率。
10)锅炉配有高低水位报警及极限低水位停炉、超压报警,并有水泵自动控制,不会发生无水的现象。
DZG系列卧式固定炉排燃菌渣生物质蒸汽锅炉技术参数表
